Új építésű, A+ energetikai besorolású társasházi lakás eladó a Zrínyi Ilona Gimnázium közelében!

Vissza
Azonosító BI26492 NYOMTATÁS
Eladó ingatlanEladó
Ingatlan típusaLakás
Irányítószám4400
TelepülésNyíregyháza
Ára56.748.600 Ft
Alapterület61 m2
Építés éve2025
KomfortfokozatÖsszkomfortos
Épület szerkezetTégla
Szobák száma1
Félszoba1
Fűtés típusaEgyéb kazán
Szintek1. emelet
ParkolásEgyéb

Új építésű, A+ energetikai besorolású társasházi lakás eladó a Zrínyi Ilona Gimnázium közelében!

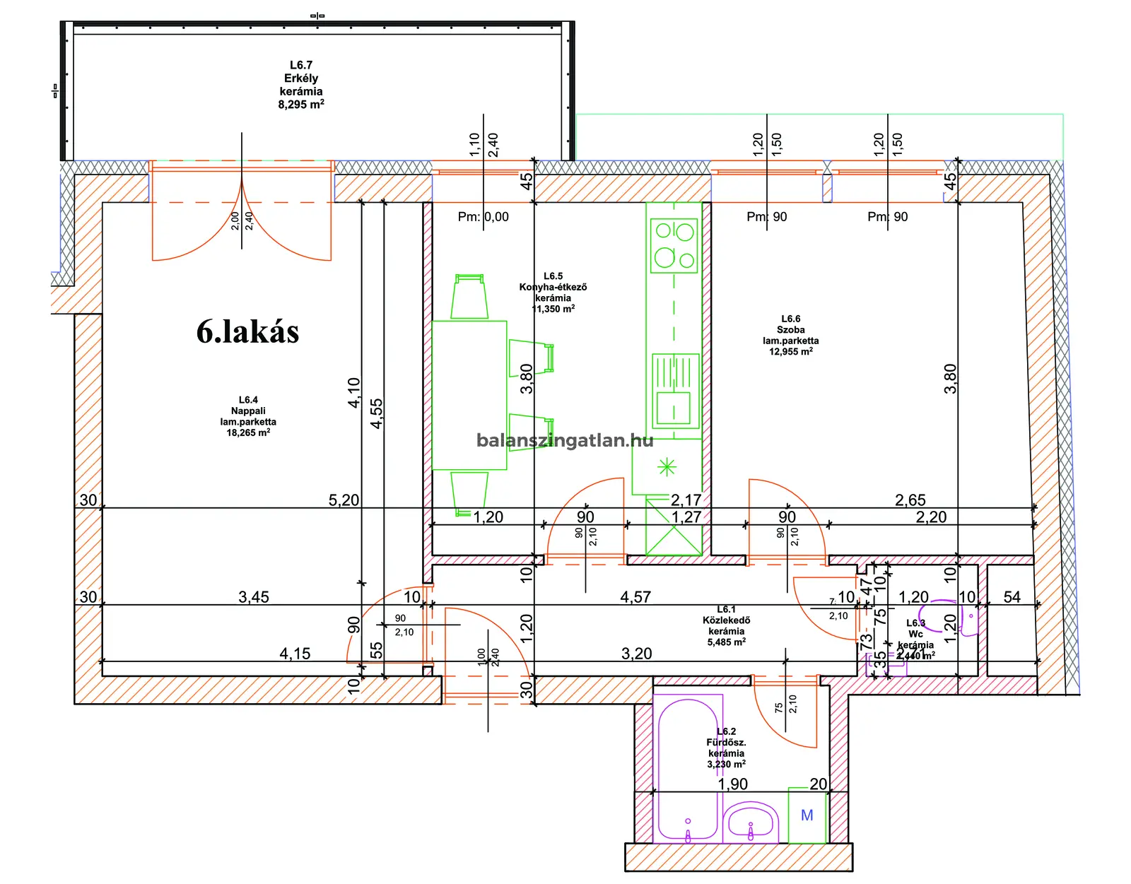
Eladó egy 61,2 m²-es, 1. emeleti, modern, energiatakarékos lakás egy 3 szintes társasházban, amely garantálja az alacsony rezsiköltségeket.

Várható átadás: 2026 év vége

Műszaki tartalom:

Élettér:

Nappali, szoba, előtér, konyha-étkező, WC, fürdőszoba, gardrób, erkély
Alaprajzon: 6-os lakás

Garázs és gépkocsi-beálló külön helyrajzi számon vásárolható.

Komplex szolgáltatáscsomagunk az Ön kényelméért:

Vevőink számára a közvetítés díjtalan!

Megosztom Kedvencekhez Elküldöm
üzenetben
Az Ön ingatlan tanácsadója

Hasonló ingatlanok, ezeket látta már?

Színház közelében 53 m²-es, 2 szobás, loggiás lakás eladó!
39.900.000 Ft
Képek 8 kép
Nyíregyháza belvárosában, a Színház közelében 53 m²-es, 2 szobás, loggiás lakás eladó! 3%-os hitel igényelhető! Eladásra kínálok...
Alapterület 53 ㎡
Szobák 2
Tágas, felújított lakás eladó Nyíregyháza-Belvárosban, a Selyem utcán, udvari beállóval!
53.990.000 Ft
Képek 9 kép
Tágas, felújított lakás eladó Nyíregyháza-Belvárosban, a Selyem utcán, udvari beállóval! Eladásra kínálunk egy 68 m²-es, téglaépí...
Alapterület 68 ㎡
Szobák 1
Félszoba 2
Új építésű, A+ energetikai besorolású társasházi lakás eladó a Zrínyi Ilona Gimnázium közelében!
51.801.000 Ft
Képek 9 kép
Új építésű
Új építésű, A+ energetikai besorolású társasházi lakás eladó a Zrínyi Ilona Gimnázium közelében! Eladó egy 55,7 m²-es, 3. emeleti...
Alapterület 55 ㎡
Szobák 1
Félszoba 1
Új építésű, A+ energetikai besorolású társasházi lakás eladó a Zrínyi Ilona Gimnázium közelében!
64.793.100 Ft
Képek 7 kép
Új építésű
Eladó 69,67 m²-es, 1. emeleti, modern, energiatakarékos lakás egy 2 szintes társasházban, amely garantálja az alacsony rezsiköltsé...
Alapterület 70 ㎡
Szobák 1
Félszoba 2
Új építésű, A+ energetikai besorolású társasházi lakás eladó a Zrínyi Ilona Gimnázium közelében!
53.884.200 Ft
Képek 20 kép
Új építésű
A 24-es lakáshoz ajándékba adunk egy profi lakberendező és látványtervező által készített, személyre szabott 3D belsőépítészeti te...
Alapterület 58 ㎡
Szobák 1
Félszoba 1
Új építésű, A+ energetikai besorolású társasházi lakás eladó a Zrínyi Ilona Gimnázium közelében!
56.748.600 Ft
Képek 6 kép
Új építésű
Új építésű, A+ energetikai besorolású társasházi lakás eladó a Zrínyi Ilona Gimnázium közelében! Eladó egy 61,2 m²-es, 1. emeleti...
Alapterület 61 ㎡
Szobák 1
Félszoba 1
Új építésű, A+ energetikai besorolású társasházi lakás eladó a Zrínyi Ilona Gimnázium közelében!
73.051.500 Ft
Képek 6 kép
Új építésű
A 19-es lakáshoz ajándékba adunk egy profi lakberendező és látványtervező által készített, személyre szabott 3D belsőépítészeti te...
Alapterület 79 ㎡
Szobák 3
Félszoba 1
Nyíregyháza abszolút belvárosában egy 85 m2-es, 3. emeleti lakás + 12 m2 garázs eladó!
53.900.000 Ft
Képek 11 kép
Eladó Nyíregyháza abszolút belvárosában, egy 3 emeletes társasház 3. emeletén található, 85 m²-es lakás, amelyhez egy 12 m²-es gar...
Alapterület 85 ㎡
Szobák 4
Horváth Sára
Horváth Sára
Ügyvezető
Célom a hatékony és az eredményes közvetítés. Számos olyan probléma merülhet fel, amivel Ön még nem találkozott. Több éves ingatlan értékesítő és vezetői tapasztalatból kifolyólag szinte mindenre találok megoldást. Az elmúlt években sokat tanultam, utaztam, üzleti képzésre jártam, hogy minél színvonalasabb szolgáltatást tudjunk nyújtani meglévő és leendő ügyfeleink számára. még több
Célom a hatékony és az eredményes közvetítés. Számos olyan probléma merülhet fel, amivel Ön még nem találkozott. Több éves ingatlan értékesítő és vezetői tapasztalatból kifolyólag szinte mindenre találok megoldást. Az elmúlt években sokat tanultam, utaztam, üzleti képzésre jártam, hogy minél színvonalasabb szolgáltatást tudjunk nyújtani meglévő és leendő ügyfeleink számára.
Telefonszám +36 70 555 0212 E-mail sara@balanszingatlan.hu Iroda 4400 Nyíregyháza, István utca 32.
Komplex szolgáltatásaink
Az Ön érdekében!
Szolgáltatásaink
Munkatársaink
Ingatlan szakemberek
Ingatlanszakértőink