Új építésű, A+ energetikai besorolású társasházi lakás eladó a Zrínyi Ilona Gimnázium közelében!

Vissza
Azonosító BI26523 NYOMTATÁS
Eladó ingatlanEladó
Ingatlan típusaLakás
Irányítószám4400
TelepülésNyíregyháza
Ára64.793.100 Ft
Alapterület70 m2
Építés éve2025
KomfortfokozatÖsszkomfortos
Épület szerkezetTégla
Szobák száma1
Félszoba2
Ingatlan állapotaÚj építésű
Fűtés típusaEgyéb kazán
Szintek1. emelet
ParkolásEgyéb

Eladó 69,67 m²-es, 1. emeleti, modern, energiatakarékos lakás egy 2 szintes társasházban, amely garantálja az alacsony rezsiköltségeket.

Várható átadás: 2026 év vége

Műszaki tartalom:

Élettér:

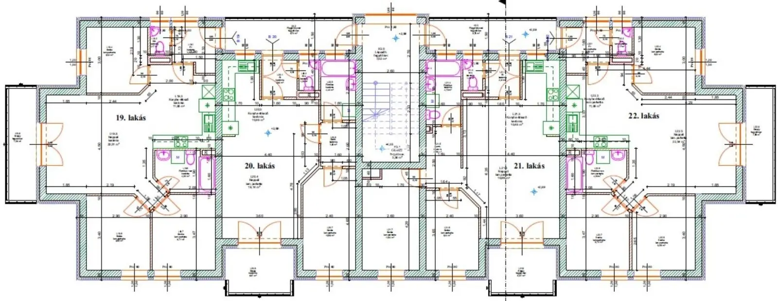
Nappali, 2 szoba, konyha+étkező, előtér, gardrób, fürdőszoba, WC, erkély


Alaprajzon: 21-es lakás

Garázs és gépkocsi-beálló külön helyrajzi számon vásárolható.

B épület-elérhető lakások:

1.emelet:

19-es lakás: 78,55 m²-73 051 500 Ft

21-es lakás: 69,67 m²-64 793 100 Ft

22-es lakás: 78,6 m²-73 098 000 Ft

 

2.emelet:

23-as lakás: 78,55 m²-73 051 500 Ft

24-es lakás: 57,94 m² -53 884 200 Ft- ajándék látványterv

25-ös lakás : 69,67 m²-64 793 100 Ft

26-os lakás: 78,6 m²-73 098 000 Ft

Komplex szolgáltatáscsomagunk az Ön kényelméért:

Vevőink számára a közvetítés díjtalan!

Megosztom Kedvencekhez Elküldöm
üzenetben
Az Ön ingatlan tanácsadója

Hasonló ingatlanok, ezeket látta már?

Nyíregyháza belvárosában újszerű, 61 m²-es lakás eladó garázsvásárlási lehetőséggel!
61.500.000 Ft
Képek 9 kép
Nyíregyháza egyik legkedveltebb, belvárosi részén eladóvá vált egy 2018-ban épült, modern, 2. emeleti, 61 m²-es, kiváló állapotú l...
Alapterület 61 ㎡
Szobák 1
Félszoba 2
Modern, új építésű lakások kiváló elhelyezkedéssel, jelenleg 90%-os készültségi szinten!
84.559.500 Ft
Képek 8 kép
Új építésű
Modern, új építésű lakások kiváló elhelyezkedéssel, jelenleg 90%-os készültségi szinten! A város központi részén, remek infrastru...
Alapterület 74 ㎡
Szobák 3
Modern, új építésű lakások kiváló elhelyezkedéssel, jelenleg 90%-os készültségi szinten!
83.829.200 Ft
Képek 8 kép
Új építésű
A város központi részén, remek infrastruktúrával és könnyű megközelíthetőséggel kínálunk eladásra prémium minőségű, korszerű műsza...
Alapterület 67 ㎡
Szobák 3
Új építésű, A+ energetikai besorolású társasházi lakás eladó a Zrínyi Ilona Gimnázium közelében!
56.916.000 Ft
Képek 9 kép
Új építésű
Új építésű, A+ energetikai besorolású társasházi lakás eladó a Zrínyi Ilona Gimnázium közelében! Eladó egy 61,2 m²-es, 2. emeleti...
Alapterület 61 ㎡
Szobák 1
Félszoba 1
Zrínyi Ilona Gimnázium közelében 72 m²-es lakás zárt udvari beállóval eladó!
49.900.000 Ft
Képek 10 kép
Alapadatok: Alapterület: 72 m² Elosztás: nappali, két hálószoba, konyha, kamra, fürdő, közlekedő Erkély: 6 m² Elhelyezkedés:...
Alapterület 72 ㎡
Szobák 1
Félszoba 2
Új építésű, A+ energetikai besorolású társasházi lakás eladó a Zrínyi Ilona Gimnázium közelében!
51.801.000 Ft
Képek 9 kép
Új építésű
Új építésű, A+ energetikai besorolású társasházi lakás eladó a Zrínyi Ilona Gimnázium közelében! Eladó egy 55,7 m²-es, 3. emeleti...
Alapterület 55 ㎡
Szobák 1
Félszoba 1
Új építésű, A+ energetikai besorolású társasházi lakás eladó a Zrínyi Ilona Gimnázium közelében!
64.793.100 Ft
Képek 7 kép
Új építésű
Eladó 69,67 m²-es, 1. emeleti, modern, energiatakarékos lakás egy 2 szintes társasházban, amely garantálja az alacsony rezsiköltsé...
Alapterület 70 ㎡
Szobák 1
Félszoba 2
Új építésű, A+ energetikai besorolású társasházi lakás eladó a Zrínyi Ilona Gimnázium közelében!
53.884.200 Ft
Képek 20 kép
Új építésű
A 24-es lakáshoz ajándékba adunk egy profi lakberendező és látványtervező által készített, személyre szabott 3D belsőépítészeti te...
Alapterület 58 ㎡
Szobák 1
Félszoba 1
Horváth Sára
Horváth Sára
Ügyvezető
Célom a hatékony és az eredményes közvetítés. Számos olyan probléma merülhet fel, amivel Ön még nem találkozott. Több éves ingatlan értékesítő és vezetői tapasztalatból kifolyólag szinte mindenre találok megoldást. Az elmúlt években sokat tanultam, utaztam, üzleti képzésre jártam, hogy minél színvonalasabb szolgáltatást tudjunk nyújtani meglévő és leendő ügyfeleink számára. még több
Célom a hatékony és az eredményes közvetítés. Számos olyan probléma merülhet fel, amivel Ön még nem találkozott. Több éves ingatlan értékesítő és vezetői tapasztalatból kifolyólag szinte mindenre találok megoldást. Az elmúlt években sokat tanultam, utaztam, üzleti képzésre jártam, hogy minél színvonalasabb szolgáltatást tudjunk nyújtani meglévő és leendő ügyfeleink számára.
Telefonszám +36 70 555 0212 E-mail sara@balanszingatlan.hu Iroda 4400 Nyíregyháza, István utca 32.
Komplex szolgáltatásaink
Az Ön érdekében!
Szolgáltatásaink
Munkatársaink
Ingatlan szakemberek
Ingatlanszakértőink