Modern Elegancia és Tudatos Térelosztás – 70,41 m²-es Új Építésű Lakás Eladó a vasgyár utcán!

Vissza
Azonosító BI26576 NYOMTATÁS
Eladó ingatlanEladó
Ingatlan típusaLakás
Irányítószám4400
TelepülésNyíregyháza
Ára59.000.000 Ft
Alapterület70 m2
Építés éve2025
KomfortfokozatDuplakomfortos
Épület szerkezetTégla
Szobák száma1
Félszoba1
Ingatlan állapotaÚj építésű
Fűtés típusaGázkazán
Szintek2. emelet
ParkolásEgyéb

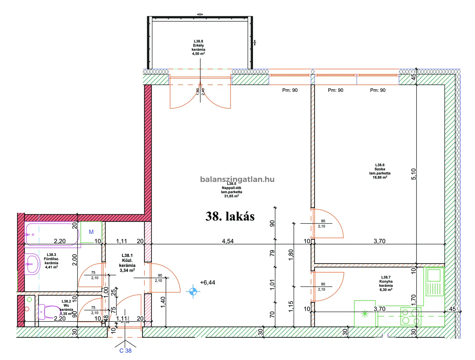
Fedezze fel leendő otthonát ebben a 2. emeleti, 70,41 m²-es, modern és energiatakarékos lakásban!

Az ingatlan különlegessége a tudatosan tervezett belső elrendezés.

Nem kell kompromisszumot kötnie az életterek között, ugyanis a konyha, az étkező és a nappali három külön egységként funkcionál, biztosítva a zavartalan családi együttléteket és a kényelmes főzést.

Műszaki adatok a maximális komfortért:

Helyiséglista (38-as lakás):
Nappali+ étkező • nagyméretű szoba • Szeparált konyha • Gardrób • Előtér • Fürdőszoba • Külön WC • Loggia.

Átadás: 2026. december vége.

Miért érdemes minket választania?
A lakáshoz külön helyrajzi számon garázs és gépkocsi-beálló is vásárolható. Ügyfeleinknek ingyenes, teljes körű hitelügyintézést (CSOK Plusz, Babaváró, Otthon Start), ügyvédi hátteret és professzionális lakberendezési tanácsadást (3D látványtervezéssel) biztosítunk.

A közvetítés vevőink számára díjtalan!

Ne maradjon le erről a prémium lehetőségről, keressen bizalommal a részletekért!

Megosztom Kedvencekhez Elküldöm
üzenetben
Az Ön ingatlan tanácsadója

Hasonló ingatlanok, ezeket látta már?

Modern Elegancia és Tudatos Térelosztás – 70,41 m²-es Új Építésű Lakás Eladó a vasgyár utcán!
59.000.000 Ft
Képek 14 kép
Új építésű
Fedezze fel leendő otthonát ebben a 2. emeleti, 70,41 m²-es, modern és energiatakarékos lakásban! Az ingatlan különlegessége a tu...
Alapterület 70 ㎡
Szobák 1
Félszoba 1
Modern Elegancia és Tudatos Térelosztás – 71 m²-es Új Építésű Lakás Eladó a Vasgyár Utcán!
59.000.000 Ft
Képek 9 kép
Új építésű
Fedezze fel leendő otthonát ebben a 2. emeleti, 71,37 m²-es, modern és energiatakarékos lakásban! Az ingatlan különlegessége a tu...
Alapterület 71 ㎡
Szobák 1
Félszoba 1
Új építésű, Nappali + 2 szobás lakás eladó a Vasgyár utcán!
59.000.000 Ft
Képek 13 kép
Új építésű
Eladó 69,67 m²-es, 2. emeleti, modern, energiatakarékos lakás egy 2 szintes társasházban, amely garantálja az alacsony rezsiköltsé...
Alapterület 70 ㎡
Nyíregyháza Belváros 75 m²-es 1. emeleti lakás teremgarázzsal eladó!
69.990.000 Ft
Képek 9 kép
Eladó Nyíregyháza abszolút belvárosában egy 2004-ben épült, tégla szerkezetű, szigetelt társasházi lakás. Az ingatlan liftes házb...
Alapterület 75 ㎡
Szobák 3
Tágas, 3 szobás otthon a Kossuth utcán – Nyíregyháza szívében!
65.500.000 Ft
Képek 7 kép
Eladó egy kiváló adottságú, 79 m²-es ingatlan Nyíregyháza belvárosában, a népszerű Kossuth utcán. A lakás egy 1989-ben épült, 10...
Alapterület 79 ㎡
Szobák 3
Új építésű, nappali + 3 szobás lakás a Vasgyár utcán!
64.345.200 Ft
Képek 16 kép
Új építésű
ÚJ ÉPÍTÉSŰ, A+ ENERGETIKAI BESOROLÁSÚ LAKÁSOK A VASGYÁR UTCÁN! Eladó egy 78,60 m²-es, 2. emeleti, modern, energiatakarékos lakás ...
Alapterület 79 ㎡
Szobák 3
Félszoba 1
1. emeleti otthon nagy erkéllyel – Különálló nappalival, étkezővel és konyhával
60.875.100 Ft
Képek 16 kép
Új építésű
ÚJ ÉPÍTÉSŰ, A+ ENERGETIKAI BESOROLÁSÚ LAKÁSOK A VASGYÁR UTCÁN! Eladó egy 75,22 m²-es, 1. emeleti, modern, energiatakarékos lakás...
Alapterület 75 ㎡
Szobák 2
Belvárosban, Új építésű 67,72 m²-es lakás – 2. emelet, 2 erkély
62.020.000 Ft
Képek 5 kép
Új építésű
67,72 m²-es lakás egy új építésű, 10 lakásos, kétszintes társasház 2. emeletén, praktikus elrendezéssel. A korszerű műszaki megol...
Alapterület 68 ㎡
Szobák 1
Félszoba 2
Horváth Sára
Horváth Sára
Ügyvezető
Célom a hatékony és az eredményes közvetítés. Számos olyan probléma merülhet fel, amivel Ön még nem találkozott. Több éves ingatlan értékesítő és vezetői tapasztalatból kifolyólag szinte mindenre találok megoldást. Az elmúlt években sokat tanultam, utaztam, üzleti képzésre jártam, hogy minél színvonalasabb szolgáltatást tudjunk nyújtani meglévő és leendő ügyfeleink számára. még több
Célom a hatékony és az eredményes közvetítés. Számos olyan probléma merülhet fel, amivel Ön még nem találkozott. Több éves ingatlan értékesítő és vezetői tapasztalatból kifolyólag szinte mindenre találok megoldást. Az elmúlt években sokat tanultam, utaztam, üzleti képzésre jártam, hogy minél színvonalasabb szolgáltatást tudjunk nyújtani meglévő és leendő ügyfeleink számára.
Telefonszám +36 70 555 0212 E-mail sara@balanszingatlan.hu
Komplex szolgáltatásaink
Az Ön érdekében!
Szolgáltatásaink
Munkatársaink
Ingatlan szakemberek
Ingatlanszakértőink